Автосервис., Московская область обл., г.Жуковский, ул.Амет-хан Султана, д.15с5, 300 кв.м., 1/2 эт. 30 000 000 руб.
Описание
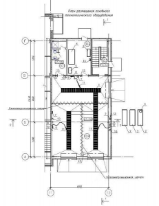
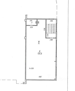
Михаил. Лот: 118-914-832 г. Жуковский, мкр. Горельники, ул. Амет-хан Султана, 15 стр. 5. Продаётся помещение 300 кв.м., на 1-м этаже автомойка на 3 поста с шиномонтажем. 2-й этаж сдан в аренду под кафе. Участок муниципальный. Здание поделено на несколько собственников. Все коммуникации центральные. Электричество 140 кВт. Продажа в собственность, цена 30 000 000 руб. АГЕНТАМ ПРОСЬБА НЕ ЗВОНИТЬ.
. .
Характеристики
Комнат: комната
Комнат: комната
Общая площадь: 300 кв.м
Этаж: 1 / 2
Область: Московская область
Город: г.Жуковский
Улица: ул.Амет-хан Султана, 15с5
Ориентир: 30 мин. от Комсомольская
Балкон/лоджия: нет
Контакты
Все объявления пользователяКонтактное лицо: Садовое кольцо, Михаил
Телефон: +79261034044
+79255427679
Email:
84955427679@mail.ru
Садовое кольцо
Пожалуйста, сообщите владельцу объявления, что Вы нашли его предложение на сайте Доски Объявлений - do.ru
















