Производство., Раменский район обл., г.Раменское, ул.Михалевича, д.47, 2258 кв.м., 1/2 эт.
Описание
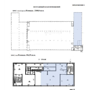
Энже. Лот: 119-114-930 Предлагаем на огрорженной, ораняемой территории 2101 кв.м. под склад или производство +157 кв.м. под офис, раздевалку, столовую. С двумя кран балками с грузоподъемностью 10 тн и 50 тн, управляемые с земли оператором. Центральное отопление, канализция, Выссота потолков 14 м. . Двое ворот. К арендной ставке добавляется отдельно отопление, электричество и НДС (22 %). До Ж\Д станции " Ипподром " 10 мин. пешком. До Раменки 20 мин. Также можно арендовать отдельно офисные помещения от 40 кв.м. 24/7 Агентам просьба не звонить.
. Прямая аренда. .
Характеристики
Комнат: комната
Комнат: комната
Общая площадь: 2258 кв.м
Этаж: 1 / 2
Область: Раменский район
Город: г.Раменское
Улица: ул.Михалевича, 47
Балкон/лоджия: нет
Контакты
Все объявления пользователяКонтактное лицо: Садовое кольцо, Энже
Телефон: +79164346559
+79255427679
Email:
84955427679@mail.ru
Садовое кольцо
Пожалуйста, сообщите владельцу объявления, что Вы нашли его предложение на сайте Доски Объявлений - do.ru







